|
|
|
DOCK HARDWARE IN BC AND ALBERTA CANADA
 |
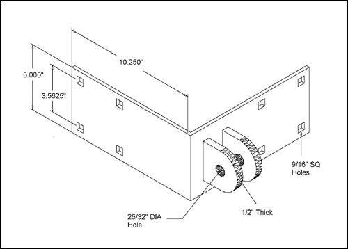
| (H-OCF) The Outside Corner Female
has two 5/8" tabs with holes for a 3/4" Connector
Pin (B-PIN). Use with an Outside
Corner Male (H-OCF) or with a Single
"T" Male (H-SF) at the corner of
your dock to attach a finger or dock section. |
|
|
|
Related items that you may need. Click to view.
 Build-A-Dock
 Dock Accessories
 Ace Floats
|